- 賃料
- 42万円
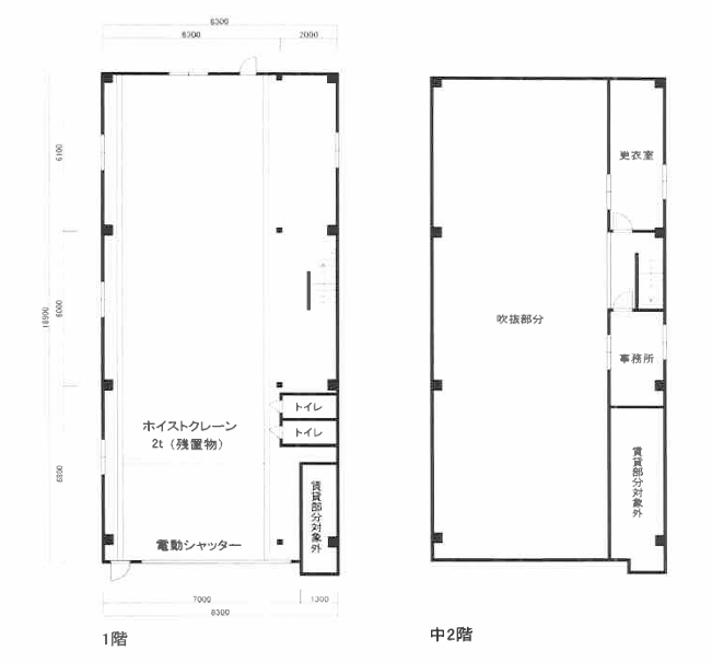
- 倉庫
- 敷金
- 2ヶ月
- 礼金
- 2ヶ月
|
|
|
|
| 所在地 | 大阪府大阪市此花区島屋3丁目 |
|---|---|
| 交通 | JR桜島線(ゆめ咲線) 安治川口駅 徒歩4分 |
| 築年月 | 1989/05 | 新築/中古 | |
|---|---|---|---|
| 面積 | 171m² | 計測方式 | |
| バルコニー | m² | 向き | |
| 建物階数 | 地上1階 | 部屋階数 | 階 |
| 部屋/区画番号 | 総戸/区画数 | ||
| 建物構造 | 鉄骨造 | ||
| 間取内容 | |||
| 駐車場 | 空有 | 取引態様 | 仲介 |
| 引渡/入居時期 | 即時 | 現況 | 空家 |
| 地目 | 用途地域 | 準工業 | |
| 接道方向1 | 南東 | 接道間口1 | m |
| 接道種別1 | 公道 | 接道幅員1 | 7m |
| 周辺環境 | |||
| 設備・条件 | |||
| 物件番号 | 2189 | ||
- 中2階付倉庫
- 面積1階約151㎡・2階約20㎡
- ホイストクレーン2トンあり(残置物)
- 電動シャッター間口約5.5m・高さ約4.2m
- 工場使用可能(騒音・臭いのある業種は不可)
- 駐車スペースあり
- 貸主免税事業者 インボイス無し
※物件掲載内容と現況に相違がある場合は現況を優先と致します。


